Wohnhauserweiterung in Como von OASI Architects
Bild 12/16
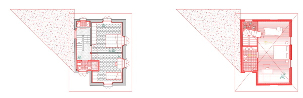
Grundriss 1. Obergeschoss und Dachgeschoss
Bild: OASI Architects