Die Meldung in Bildern
Ländlicher Luxus
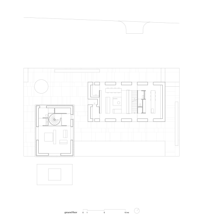
Wohnhausensemble bei Urbino von GGA gardini gibertini architetti
Bild 47/50
Erdgeschoss
Bild: GGA