Bild 27/30
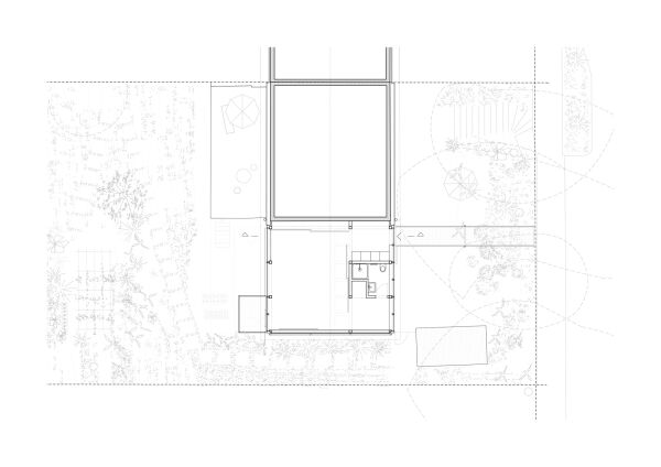
Grundriss Obergeschoss (die Tür zum Bestand fehlt in der Zeichnung, sie befindet sich direkt neben dem Steg)
Bild: Aretz Dürr Architektur
Bild 27/30
Grundriss Obergeschoss (die Tür zum Bestand fehlt in der Zeichnung, sie befindet sich direkt neben dem Steg)
Bild: Aretz Dürr Architektur