Wohnhaus von augustinundfrank/winkler
Bild 23/25
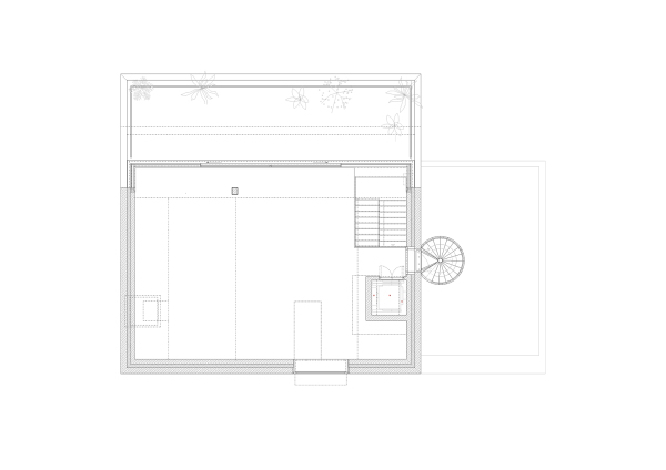
Grundriss Dachgeschoss
Bild: augustinundfrank/winkler