Wohnhaus von augustinundfrank/winkler
Bild 21/25
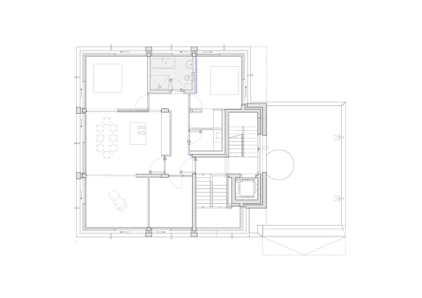
Grundriss Hochparterre
Bild: augustinundfrank/winkler