Die Meldung in Bildern
Holländischer Findling
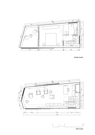
Wohnhaus von Wiel Arets in Tokio
Bild 30/33