Wohnhaus von Tillmann Wagner Architekten
Bild 23/29
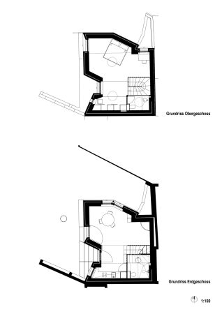
Grundriss Erd- und Obergeschoss
Bild: Tillmann Wagner Architekten