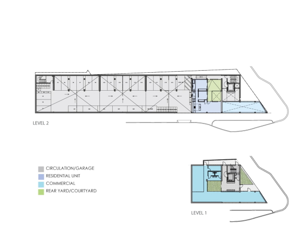
Concrete, Beton Loft, u-förmig, Innenhof, Spiraltreppe, Topografie, San Francisco. Baptist Church, Baptistenkirche, Sonnenschutz, Gebäudehülle,Loggia, Durchlüftung, air,

Bild 21/23