Die Meldung in Bildern
Im Übergang
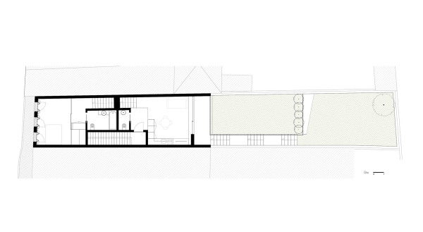
Wohnhaus von Sonia Cruz in Aveiro
Bild 24/27
Grundriss 1. Obergeschoss
Bild: Sonia Cruz Arquitectura