Die Meldung in Bildern
Auftakt am London Dock
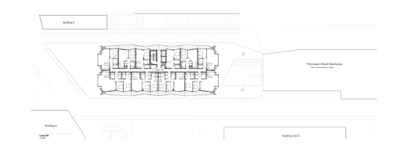
Wohnhaus von Patel Taylor Architects
Bild 15/19
6. Obergeschoss
Bild: Patel Taylor Architects