Die Meldung in Bildern
Solide in Holloway
Wohnhaus von PARTI in London
Bild 14/22
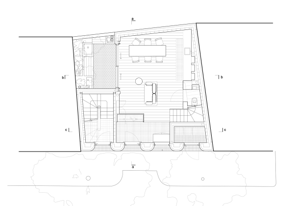
Grundriss Erdgeschoss
Bild: Parti