Die Meldung in Bildern
Fliegerscheune im Erdgeschoss
Wohnhaus von LIMA Architekten in Ammerbuch
Bild 22/24
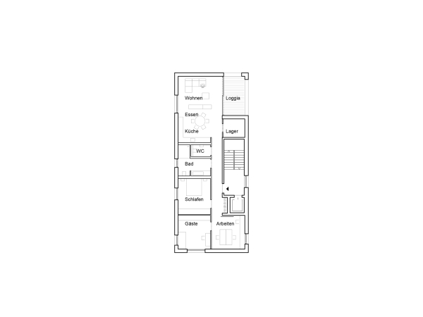
2. Obergeschoss
Bild: LIMA Architekten