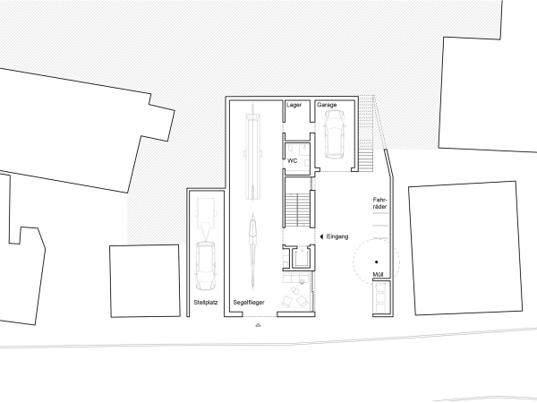
Wohnhaus von LIMA Architekten in Ammerbuch
Bild 20/24
Erdgeschoss/Hanggeschoss
Bild: LIMA Architekten