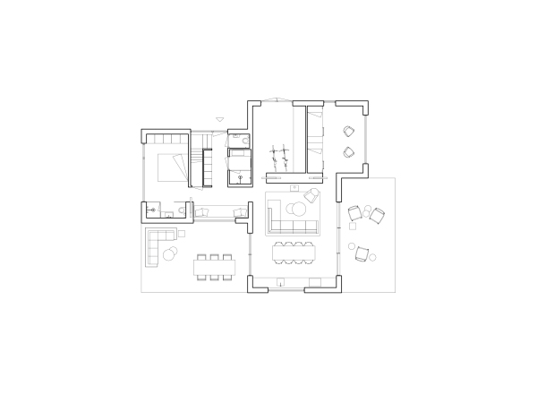
Wohnhaus von HofmanDujardin in den Niederlanden
Bild 13/18
Grundriss Erdgeschoss
Bild: HofmanDujardin