Wohnhaus von Gianni Botsford Architects in London
Bild 40/44
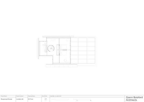
Grundriss 1. Obergeschoss
Bild: Gianni Botsford Architects