Die Meldung in Bildern
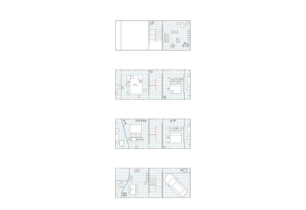
Im Rhythmus der Glasbausteine
Wohnhaus von Fala Atelier in Lissabon
Bild 13/20
Bild:
Fala Atelier