Die Meldung in Bildern
Das Maximum an Raum rausholen
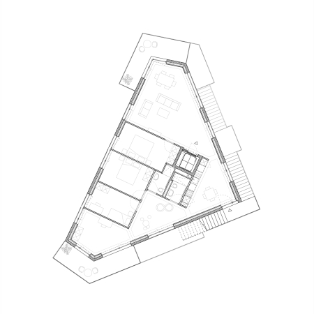
Wohnhaus von Dreier Frenzel in Renens bei Lausanne
Bild 17/21
3. Obergeschoss
Bild: Dreier Frenzel