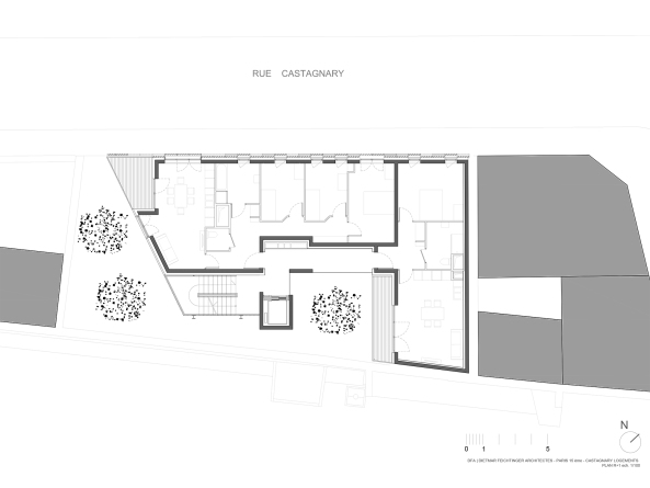
Paris, Dietmar Feichtinger Architectes, Sozialer Wohnungsbau, Rue Castagnary, 15. Arrondissement, social housing, 1016, Metall, Lamellen, Frankreich

Bild 15/18

Grundriss Obergeschosse

Bild: Dietmar Feichtinger Architectes