Die Meldung in Bildern
Wandelbar und interaktiv
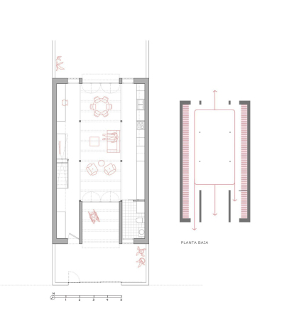
Wohnhaus von CRUX Arquitectos bei Valencia
Bild 16/20
Grundriss EG
Bild: CRUX arquitectos