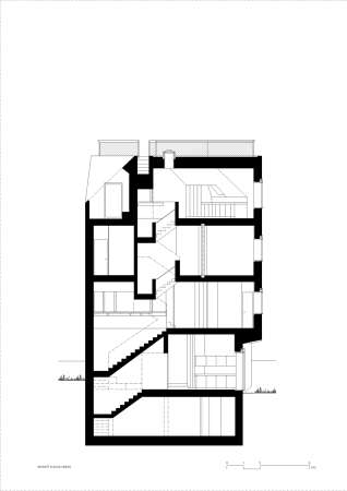
Wohnhaus von Andreas Fuhrimann Gabrielle Hächler Architekten

Bild 34/34

Bild: Andreas Fuhrimann Gabrielle Hächler Architekten