Die Meldung in Bildern
Pärchen im nordischen Fichtenkleid
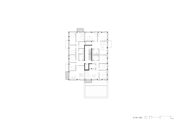
Wohnhaus und Kita in Bremen von ZRS
Bild 23/36
Grundriss 3.OG
Bild: ZRS Architekten Ingenieure