Die Meldung in Bildern
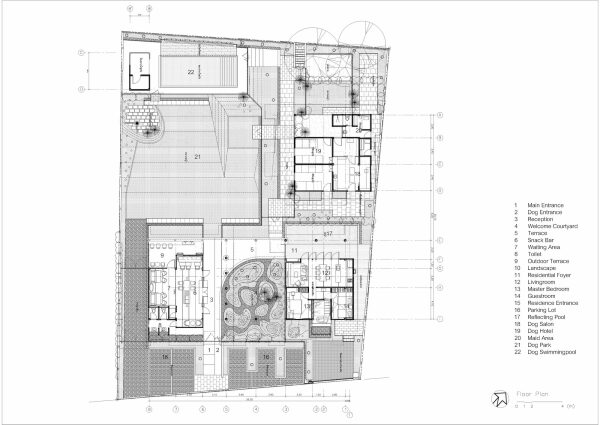
Alle unter einem Dach
Wohnhaus mit Hundehotel von EKAR in Thailand
Bild 40/46
Grundriss
Bild: EKAR