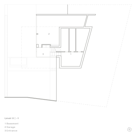
kit architects, Haus in der March, Kanton Schyz, Sichtbeton, Split-Level

Bild 10/13