Die Meldung in Bildern
Fenster zum Tal
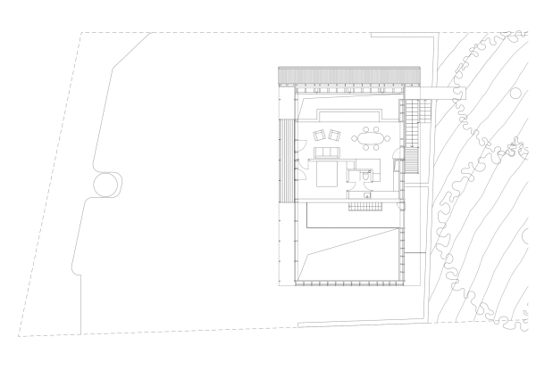
Wohnhaus in Weßling von Spacial Solutions
Bild 30/32
Grundriss 2. OG
Bild: Spacial Solutions