Die Meldung in Bildern
Thermisch träge, luftig leicht
Wohnhaus in Vilafranca del Penedès von taller11
Bild 18/24
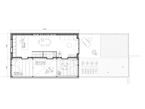
Erdgeschoss
Bild: taller11