APOLLO Architects, Wohnhaus, Japan Minihaus, Tokio, Holz, Beton, Einfamilienhaus, Minigäuser, Masao Nishikawa, Satoshi Kurosaki, Nibancho Chiyoda ward Tokyo, Minihouse, Nakano ward Tokyo, Private housing, 2014

Bild 17/21

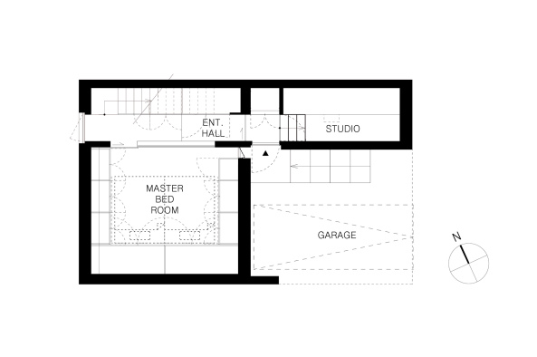
Grundriss Erdgeschoss

Bild: APOLLO Architects & Associates