Die Meldung in Bildern
Kleine Großstadtoase
Wohnhaus in Sao Paulo
Bild 11/15
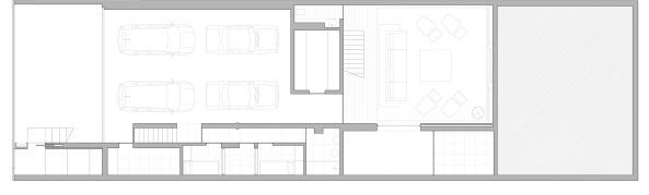
Grundriss Untergeschoss