Die Meldung in Bildern
In schmaler Nachbarschaft
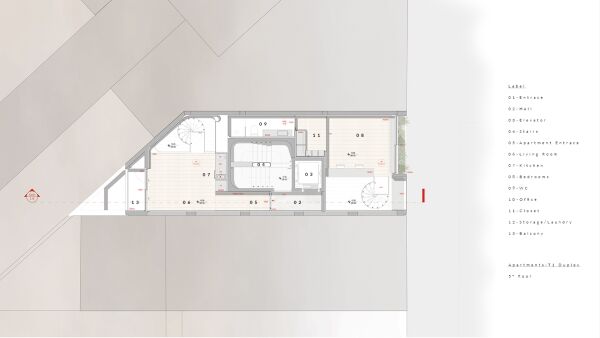
Wohnhaus in Porto von Paulo Merlini Architects
Bild 18/22
Bild: Paulo Merlini architects