Die Meldung in Bildern
Hölzerne Raute
Wohnhaus in Oregon von Mork-Ulnes Architects
Bild 14/23
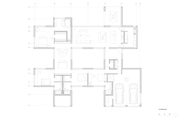
Grundriss
Bild: Mork-Ulnes Architects