Die Meldung in Bildern
Glaspalast mit Satteldach
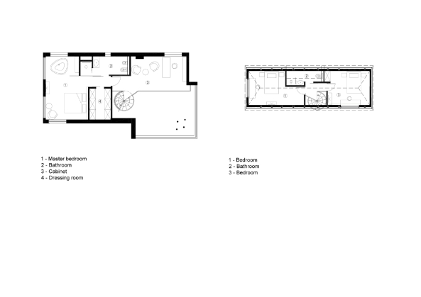
Wohnhaus in Moskau von 4a umgebaut
Bild 16/27
Bild: 4a Architekten