Wohnhaus, Haus vom Nikolaus, Ann Arbor, Michigan, Bureau for Architecture and Urbanism

Bild 14/21

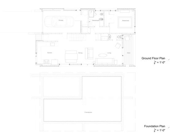
Grundriss Bodenplatte, EG