Die Meldung in Bildern
Introspektion hinter roten Ziegeln
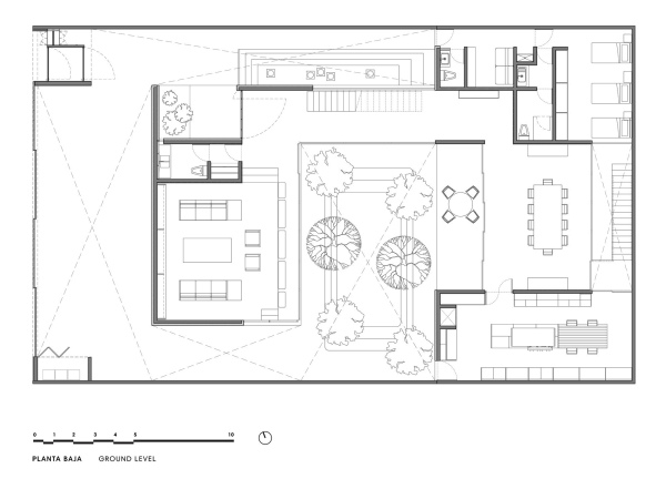
Wohnhaus in Mexiko-Stadt von Esrawe Studio
Bild 16/24
Bild: Esrawe Studio