Die Meldung in Bildern
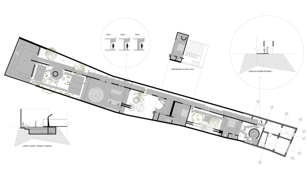
Auf Durchzug gebaut
Wohnhaus in Merida von Ludwig Godefroy
Bild 21/22
Bild: Ludwig Godefroy Architecture