Die Meldung in Bildern
Das Unvollendete
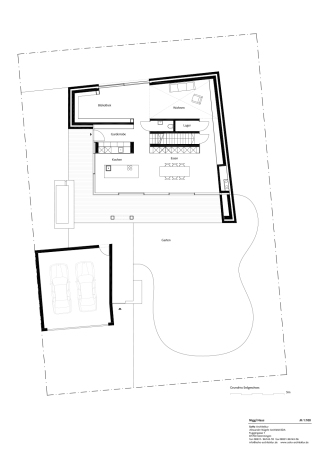
Wohnhaus in Memmingen von SoHo Architektur
Bild 23/25
EG
Bild: SoHo