Wohnhaus in London von Dallas-Pierce-Quintero
Bild 30/35
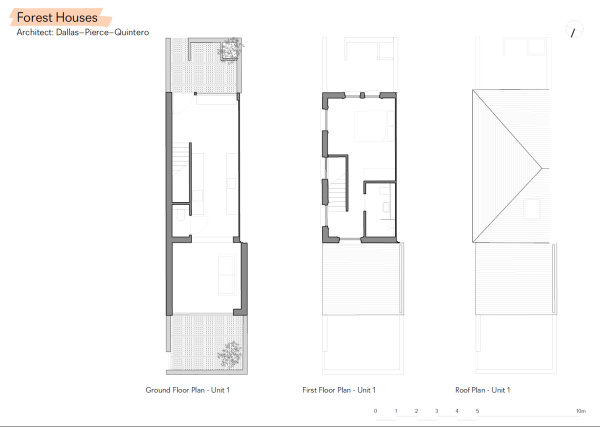
Grundrisse Unit 1
Bild: Dallas-Pierce-Quintero