Die Meldung in Bildern
Einmal Schiefer komplett
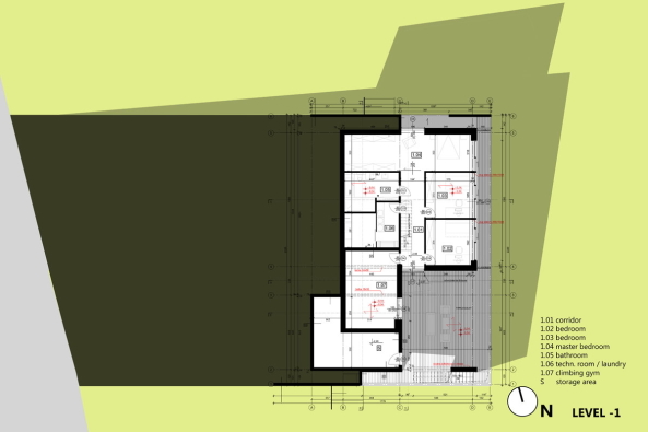
Wohnhaus in Krostoszowice von RS+ Robert Skitek
Bild 26/32
Grundriss Untergeschoss
Bild: RS+