Die Meldung in Bildern
Durchgangszimmer mit Ausblick
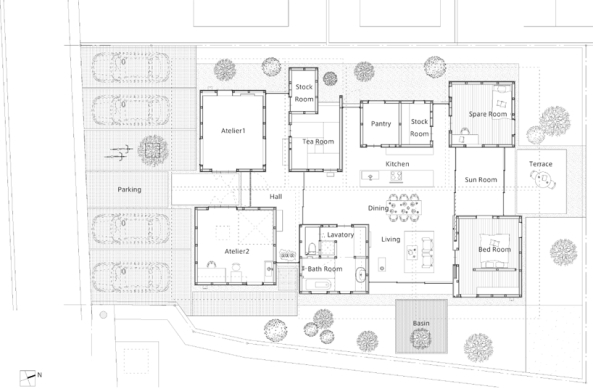
Wohnhaus in Japan
Bild 4/8