Die Meldung in Bildern
Metallisch verkleidet
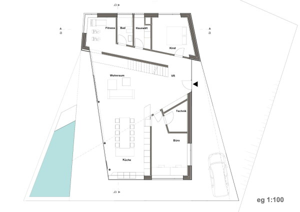
Wohnhaus in Hagenberg bei Linz von Caramel
Bild 16/23
Erdgeschoss
Bild: Caramel