Die Meldung in Bildern
Großmaschig
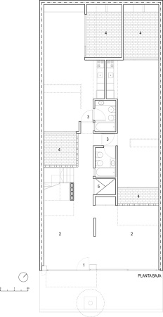
Wohnhaus in Buenos Aires
Bild 28/35
Grundriss EG