Bild 25/28
Grundriss OG mit gedruckten Außenwandschalen (grau), gedruckter Schalung für Ortbeton (rot), Ortbeton (grün), 16 cm Perlitschüttung (gelb)
Bild: Mense-Korte
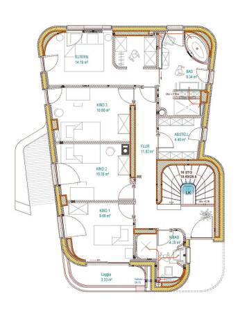
Bild 25/28
Grundriss OG mit gedruckten Außenwandschalen (grau), gedruckter Schalung für Ortbeton (rot), Ortbeton (grün), 16 cm Perlitschüttung (gelb)
Bild: Mense-Korte