Wohnhaus in Amsterdam von Space Encounters
Bild 18/20
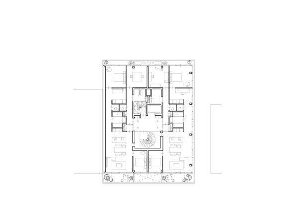
Grundriss Regelgeschoss Sockel
Bild: Space Encounters