Die Meldung in Bildern
Auf der Sandinsel
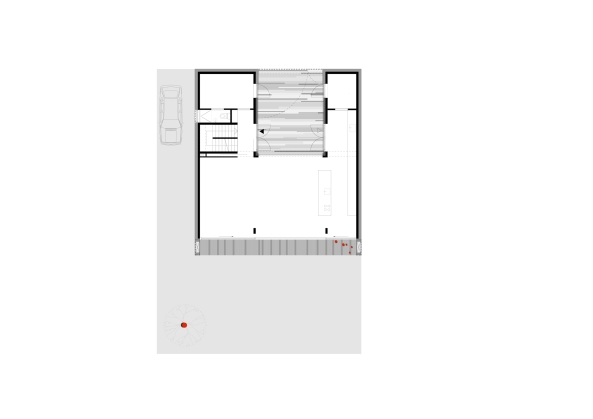
Wohnhaus in Amsterdam von Pasel Künzel
Bild 13/18
Grundriss EG