Wohnhaus im Kanton Wallis von Lionel Ballmer Architectes
Bild 25/27
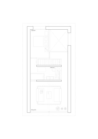
Grundriss 2. Obergeschoss
Bild: Lionel Ballmer