Die Meldung in Bildern
Mit Muße und Geduld
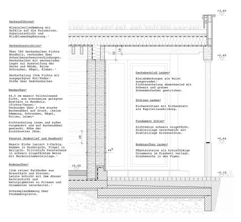
Wohnhaus im Kanton Solothurn von Meier Unger Architekten
Bild 21/25
Bild: Meier Unger Architekten