Die Meldung in Bildern
Keine Abstandsflächenarchitektur
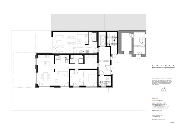
Wohnhaus im Berliner Hinterhof von wolff:architekten
Bild 10/16
Bild: wolff:architekten