Wohnhaus bei Leipzig von Peter Grundmann Architekten
Bild 21/22
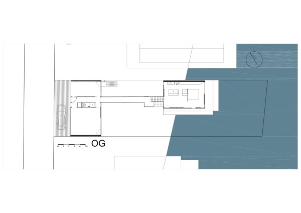
Grundriss OG
Bild: Peter Grundmann Architekten