Die Meldung in Bildern
Freibeuter mit ökologischem Anspruch
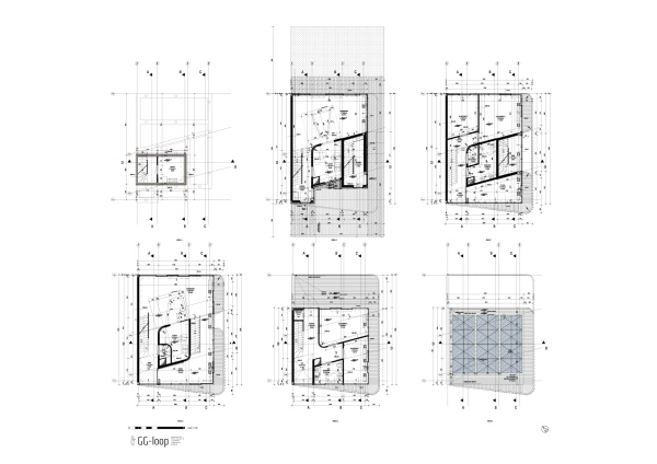
Wohnhaus aus Holz in Amsterdam von GG-loop
Bild 19/21
Bild: GG-loop