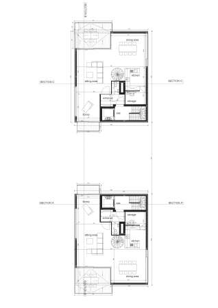
Buro II & Archi+I, Belgien, Koksijde, Strand, Haus, Wohnhaus, housing, house, wieß, Fassade, facade, Aluminium, Satteldach, pitched roof, Dünen, dune, purity

Bild 19/23