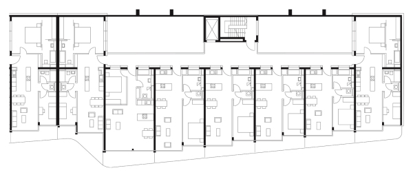
Grundriss (Ausschnitt), Haus 3 und 4, 2. Obergeschoss

Bild 11/14

Grundriss (Ausschnitt), Haus 3 und 4, 2. Obergeschoss

Bild: KSP Engel