Die Meldung in Bildern
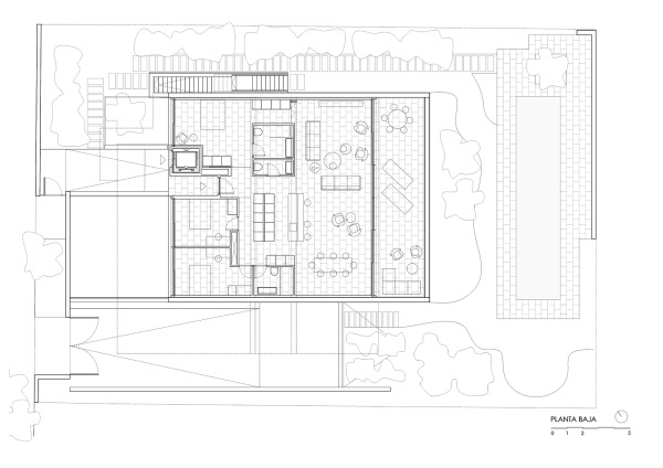
Kartenhaus aus Beton
Wohngebäude in Madrid von Bojaus
Bild 17/23
Erdgeschoss
Bild: Bojaus